
การเขียนแบบระบบไฟฟ้าประกอบอาคาร
1. องค์ประกอบของแบบไฟฟ้าและสัญลักษณ์
- การอ่านแบบและดูรายละเอียดของแบบก่อนเริ่มเขียน
2. การจัดรูปแบบในการเขียนแบบติดตัง้
- Single Line Diagram
- Riser Diagram
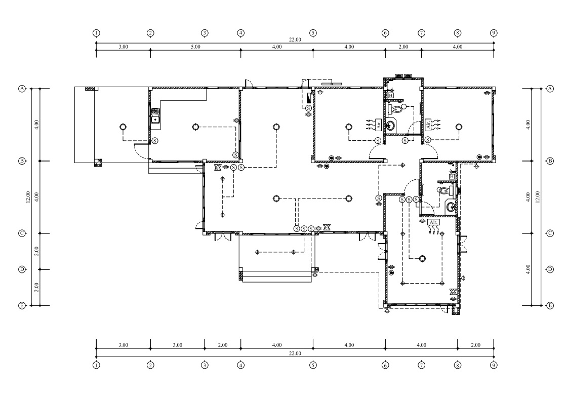
- Plan
- การเขียนแนวการเดินท่อและสายไฟฟ้า
- การใส่fitting และรายละเอียดวัสดุการติดตัง้
- การบ่งชี้วงจรไฟฟ้าแหล่งจ่ายต้นทาง
- การบ่งชี้ชนิดและขนาดของสายไฟฟ้า
3. การเขียนแบบติดตัง้ผังระบบไฟฟ้า(Shop Drawing)
3.1 ผังติดตัง้ระบบไฟฟ้าแสงสว่าง
- ชนิดของระบบแสงสว่าง
- ออกแบบร้อยสายวงจรแสงสว่าง
3.2 ผังติดตัง้ระบบไฟฟ้ากำลังและเต้ารับ
3.3 ผังติดตัง้ระบบไฟฟ้าสื่อสาร
3.4 การให้Dimension และCross section Detail









